Trilocale in vendita

Roma, Via Valle Corteno - Espero
€ 459.000
3 locali 3 locali
106 Mq 106 Mq
1 bagno 1 bagno

Trilocale in vendita

Roma, Via Valle Corteno - Espero

Descrizione annuncio

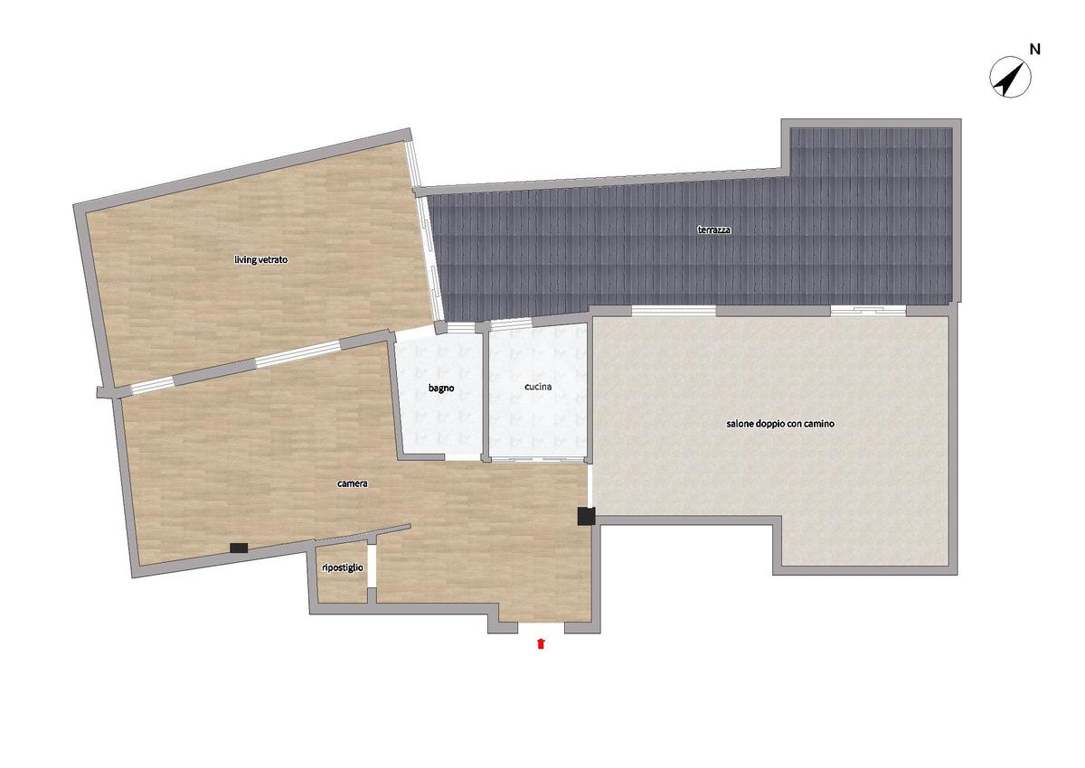
MERAVIGLIOSO ATTICO PANORAMICO CON TERRAZZO: In Via Valle Corteno proponiamo in vendita un attico di ampia metratura, luminosissimo e con una vista totalmente aperta, senza palazzi di fronte, che garantisce privacy assoluta e una straordinaria luminosità durante tutto l’arco della giornata. Un panorama libero che regala una piacevole sensazione di spazio e tranquillità, difficilmente replicabile in zona.

Il terrazzo, ampio e pienamente vivibile, rappresenta una caratteristica rara nel quartiere: uno spazio esterno prezioso, ideale per vivere momenti di relax, ricevere ospiti o semplicemente godersi il silenzio e la vista aperta.

L’immobile è attualmente composto da un salone doppio con camino, un luminoso spazio living vetrato e regolarmente sanato, una camera matrimoniale di generose dimensioni, una cucina, un bagno, un ripostiglio e una veranda condonata. Gli ambienti sono spaziosi e ben distribuiti, con infissi in PVC con doppio vetro che assicurano comfort e isolamento. Gli impianti sono certificati.

La metratura generosa e la pianta versatile consentono di personalizzare la casa secondo le proprie esigenze, trasformandola in un attico moderno, elegante e funzionale.

La zona è estremamente ben collegata e ricca di servizi, con negozi, scuole, farmacie e tutte le principali attività a pochi passi, rendendo questa soluzione ideale per chi desidera vivere in un contesto comodo e servito senza rinunciare alla privacy e alla vista aperta.

Contattaci per maggiori informazioni e per scoprire tutto il potenziale di questa proprietà.

Mostra tutto

Nelle vicinanze

Trasporto pubblico Trasporto pubblico
Conca d'Oro
Conca d'Oro
350 m
Libia
Libia
890 m
stazione di Roma Nomentana
stazione di Roma Nomentana
570 m
Val d’Ala
Val d’Ala
1,0 Km
Conca d'Oro
Conca d'Oro
270 m
Ricariche auto elettriche Ricariche auto elettriche
Roma Viale Somalia 260 | EnelX
680 m
Roma Via Fezzan | EnelX
860 m
Roma Vescovio | EnelX
1,4 Km
Roma Istria | EnelX
1,9 Km
Roma Verbano | EnelX
2,3 Km
Scuole Scuole
Scuole
350 m
Piva
410 m
Scuola Montessori
820 m
Scuola Elementare Giuseppe Parini
840 m
Scuola I.C. Volsinio (plesso S.M.Goretti)
860 m
Farmacia Farmacia
Piccioni Tito
110 m
Parafarmacia
170 m
Farmacia Conca d’Oro
270 m
Beta
380 m
Brunetta
470 m
Ospedali Ospedali
Clinica Sanatrix
1,4 Km
Centro Medicina Nucleare Italiano Villa Bianca
1,8 Km
Casa di Cura Nuova ITOR
1,8 Km
Ospedale Sandro Pertini
2,1 Km
Policlinico Italia
2,3 Km
Supermercati Supermercati
Supermercati
270 m
Pam
450 m
Tuodí
510 m
Alimentari Oriente
930 m
Il castoro
1,0 Km
Negozi Negozi
Moda & Style
240 m
Sacoph
280 m
Negozi
280 m
Mancini & Mannetti
590 m
Mozzarella di bufala
860 m
Bar Bar
Titanic
250 m
Bar
420 m
ZooBar
470 m
Bar Di Gennaro
570 m
iLocale
610 m
Ristoranti Ristoranti
Osteria Monte Sacro
50 m
Ristoranti
130 m
Pizzeria la Conca D‘Oro
190 m
Nero di seppia
220 m
La piazzetta
350 m
Mostra tutto

Caratteristiche

Rif.:
61197097
Piano:
8 di 8 con ascensore (Piano attico)
Terrazzi:
1
Camere da letto:
1
Arredamento:
Assente
Condizionamento:
Autonomo
Mostra tutto
Prezzo Prezzo
€ 459.000
Rata mutuo Rata mutuo
€ 2.164 / mese
Spese annue Spese annue
€ 900
Proponi il tuo prezzoProponi il tuo prezzo

Classe Energetica

E
E
E
E
E
E
E
E
E
EP globale non rinnovabile:
95.68 kW h/m² anno
EP globale rinnovabile:
8.13 kW h/m² anno
EP invernale del fabbricato:
EP estiva del fabbricato:
Anno di costruzione:
1957
Riscaldamento:
Centralizzato
Tipo impianto:
A radiatori
Tipo alimentazione:
Metano

Ti interessa visionare l'immobile?

Fissa un appuntamento  Fissa un appuntamento

Richiedi informazioni

Clicca su Leggi per aprire l'informativa
* Questi campi sono obbligatori

Calcola il tuo mutuo

Semplice e senza impegno
Anticipo

( % )
Mutuo

( % )

pochi semplici passi

inserisci i tuoi dati
Questionario completato
Grazie per aver richiesto un appuntamento senza impegno con un nostro Consulente del Credito e Assicurativo.

Hai inserito correttamente tutti i dati necessari e a breve riceverai una e-mail con un link da convalidare per inviare i tuoi dati.
Affiliato
Studio Espero 2 Srl
Via Val D'Ossola, 104 00141 Roma (RM)

Il nostro staff


  • Alessandra Angelaccio
    Coordinatrice

  • Alessandro Mezzetti
    Responsabile

  • Giulia Manente
    Collaboratrice

  • Giovanni Andrea Bruno
    Affiliato

  • Andrea Di Nardo
    Collaboratore
Via Val D'Ossola, 104 00141 Roma (RM)
Zona: Montesacro-Nomentano Valli - Città Giardino
Mostra su mappa
Orari: lunedì-venerdì 9:00-13:30/15:00-19:30 -sabato 9:00-13:30/15:00-17:00
Affiliato
Studio Espero 2 Srl
Via Val D'Ossola, 104 00141 Roma (RM)

2026 Tecnocasa Franchising S.p.A. - P. IVA 08365160152 - Via Monte Bianco 60/A 20089 Rozzano (MI). Ogni agenzia ha un proprio titolare ed è autonoma. Privacy policy | Policy utilizzo | Cookie policy